Entrada para obtener un acceso más rápido a las mejores ofertas. Haga clic aquí si usted no tiene una cuenta.

Casa o chalet en venta en Torviscas Centro y Alto

01.01.2023 15:02   Inmobiliaria   Costa Adeje   337 vista Referencia: 2646

Ubicación: Costa Adeje

Precio: 2 107 000 €


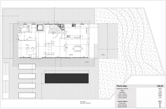
Una villa única y solo para los más exigentes. Distinción, calidad y exclusividad son las palabras que mejor definen éste ambicioso proyecto.Ubicada en un enclave inmejorable y rodeada de los mejores lujos, nos encontramos con Villa Solenzara, una vivienda exquisita de nueva construcción que nos atrapa con cada uno de sus detalles, sus imponentes vistas del océano y de la isla de la Gomera. La residencia, que cuenta con 5 dormitorios y 8 baños, nos regala un interior de lujo a la altura de algunas de las viviendas que también se encuentran en la exclusiva zona de Roque del Conde, Costa Adeje. Ningún detalle pasa desapercibido en este terreno de 833 m2 y con 508 m2 construidos en los que encontramos desde una sala de sauna, amplia oficina con vistas, gimnasio, cámara frigorífica, vinoteca y zona chill out. Todo lo necesario para vivir con todas las comodidades, sin preocupaciones y disfrutando de un diseño que nos acompaña de manera homogénea por todas las estancias.La amplitud de Villa Solenzara es uno de los aspectos que más nos llama la atención. De hecho, está distribuida en tres plantas conectadas a través de un ascensor de cristal, y cuenta además con una cómoda escalera que atraviesa los diferentes espacios generando un eje de luz central.La vivienda cuenta con una disposición amplia y dinámica que conecta el interior con la terraza y la piscina, lugar ideal para disfrutar del clima privilegiado de la isla. Además, los amplios ventanales permiten que la luz acceda a las casa sin apenas impedimentos. Una villa para disfrutar todo el año, y deleitarnos tranquilamente de su zona chill out.Es notorio como el estudio de arquitectos ha intervenido en el diseño integral y el perfecto diálogo entre todos los espacios. A través de una ingeniosa solución mediante un patio inglés, se accede a un estudio que puede permanecer independiente a la vivienda. También se llega a la bodega, el sauna, el cuarto de lavado y la sala de fitness. El resultado ha sido más que excelente, gracias a los elementos que integran la casa bajo un todo.Encuentre en Tenerife los más hermosos y desafiantes campos de golf de España. Con vistas panorámicas del mar y rodeado de exuberantes arboledas y palmeras.Navegue por las aguas del Océano Atlántico que bañan las islas y descubra por debajo de la superficie, la vida marina en todo su esplendor. Sienta las vibraciones locales, su cultura, la gran variedad de ofertas de ocio, las comidas típicas locales e internacionales, donde algunos reconocidos restaurantes cuentan con varias estrellas Michelin.Si cree que ésta podría ser la casa ideal para su disfrute, solo contáctenos y coordinaremos una reunión física o virtual para comentarle más aspectos interesantes de esta maravilla arquitectónica.

Detalles adicionales

Isla
Habitaciones
5
Baños
5+
Publica